Levallois – Appartement 2 pièces – Idéal professions libérales

  • LEVALLOIS PERRET
  • 350 000 €

Caractéristiques

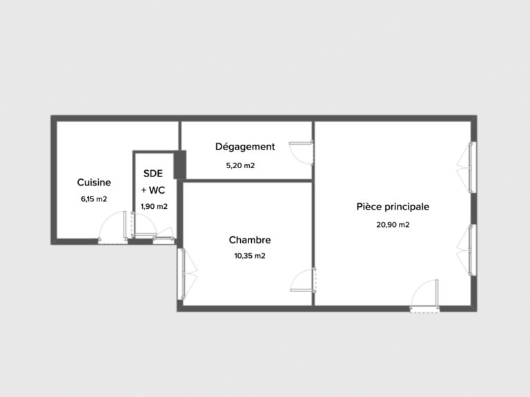
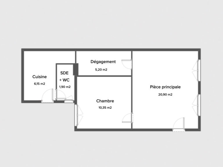
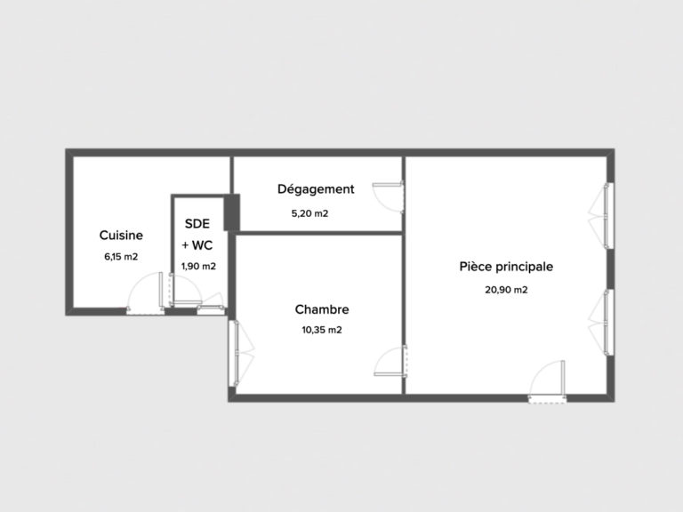
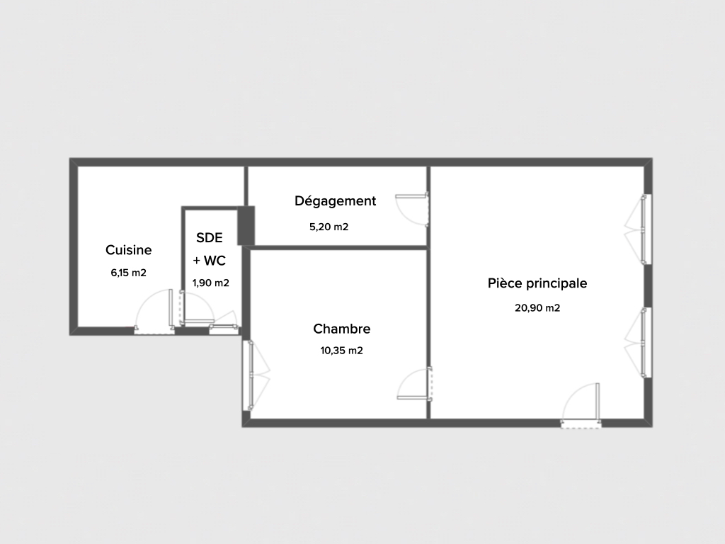
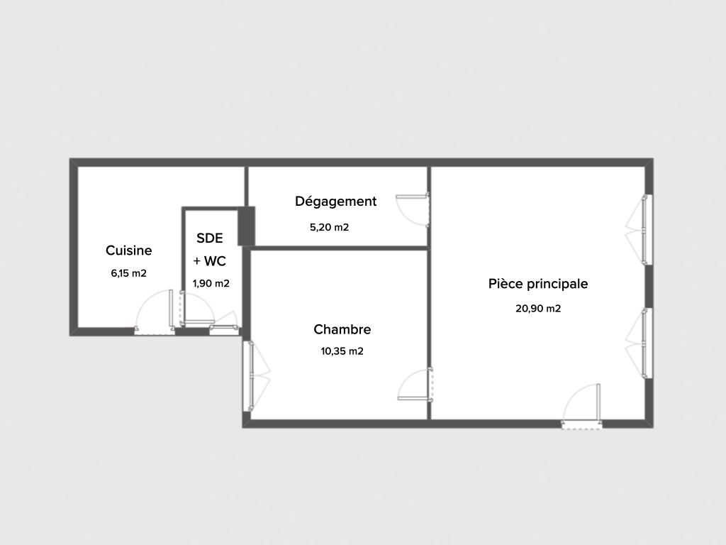
En plein coeur de Levallois village, tout proche du métro Louise Michel et du marché Henri Barbusse, appartement 2 pièces de 44,50 m2 situé au rez de chaussé d’un immeuble entretenu et sécurisé. Cet appartement traversant vous offre une pièce principale de 21 m2, une chambre sur cour, une cuisine et une salle d’eau avec WC.
Une cave en sous sol de l’immeuble complète ce bien.
Contact Jeanne ALFORT 06 83 82 24 56 (4.17 % honoraires TTC à la charge de l’acquéreur.)

Jeanne ALFORT (EI) Agent Commercial – Numéro RSAC : – .

Nous contacter
  • 45m²
  • 1 ch.

Emplacement du bien

Vous souhaitez obtenir l'adresse
exacte de ce bien ?

Nos autres biens à Levallois perret

Obtenir plus d'informations